Дизайн квартиры на Ленинском проспекте
Номинация конкурса: «Лучшее интерьерное решение в деталях».
Номинация конкурса: «Сердце уютного дома».
Интерьер двухкомнатной квартиры в стиле неоклассика
Владельцы двухкомнатной квартиры – это пара средних лет, обратились к дизайнеру интерьера Ирине Романовой с просьбой сделать интересный, необычный, стильный и функциональный дизайн-проект интерьера. Много лет в этой «двушке» не было ремонта, долгое время хозяева не обращали на это внимание, просто жили, работали, растили их единственного сына, принимали гостей, отмечали праздники, но наконец настал тот день, когда они посмотрели на свой любимый дом совершенно другими глазами. Их уже взрослый сын обзавёлся своим жильём и теперь для хозяев этого гостеприимного дома, пришел черед сделать лично для себя нечто такое, что смогло бы вдохнуть новые эмоции, впечатления, наконец, новую жизнь. Хозяева этой «двушки», не знали в каком стилистическом направлении им «идти», терялись в большом выборе цвета для оформления всей квартиры, не знали какую мебель для проекта нужно подобрать, не знали, как правильно спланировать световое оформление в квартире.
Дизайн интерьера квартиры фото
Обратившись к дизайнеру интерьера Ирине Романовой, заказчики с надеждой ждали перемен с планировочным решением, новой цветовой палитры и ещё многие вопросы, по дизайн-проекту интерьера какое-то время их сильно интересовали.
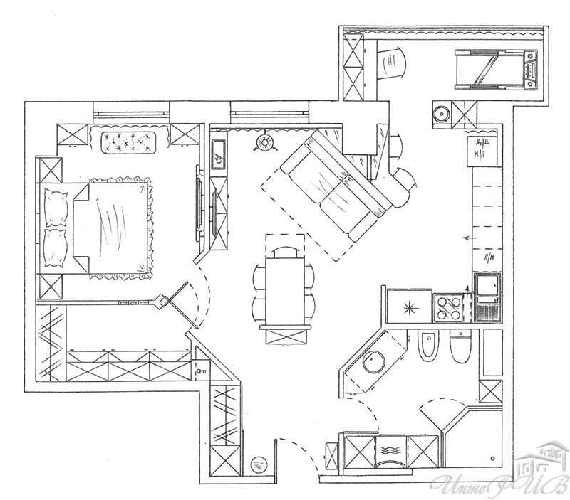
Дизайнер сделала перепланировку в двухкомнатной квартире таким образом, чтобы при сносе всех возможных перегородок, создать так называемую квартиру-студию с выделением в ней отдельных функциональных зон. Это хорошее решение для дизайна квартир, позволяющее максимально эффективно использовать пространство, и хорошая возможность сделать квартиру визуально просторнее за счет присоединения гостиной, кухни, балкона и прихожей.
Цветовое оформление для дизайна интерьера квартиры, подобрано в нарядных тонах: олива, бордо, беж, белый, такая цветовая палитра кардинально преобразила весь интерьер. Для ещё большего колорита и эстетики, дизайнер Ирина Романова добавила в декор фактуры и зеркал. Чтобы дизайн двухкомнатной квартиры выглядел более респектабельно и масштабно, было решено дополнить в интерьер гостиной электрическим камином с эффектом натурального пламени. Камин был оформлен каминным порталом из мрамора и стекла.
Интерьер кухни дополнен уютной барной стойкой за которой теперь можно посидеть выпить ароматный кофе и при этом посмотреть любимую передачу.
Дизайн спальни преобразил всё пространство небольшой комнаты, теперь помещение стало элегантным, ярким, в тоже время уютным, в нём приятно находиться.
Дизайн интерьера прихожей подобрано в тон интерьера гостиной. Помещение прихожей по своему дизайну не уступает всей остальной квартире, она яркая, нарядная, а также имеет вместительное функциональное наполнение, помимо имеющейся, после перепланировки квартиры, достаточно вместительной гардеробной комнаты.
Для дизайн-проекта ванной комнаты, за счет переноса возможных перегородок, появилось больше пространства, что никак не отразилось на общее планировочное решение, но теперь ванная комната имеет немного большую площадь и вмещает в себя больше функционала и всего того, чего хотели изначально хозяева этой двухкомнатной квартиры.
Всё световое оформление для дизайна интерьера квартиры, спроектировано таким образом, чтобы за счет различного светового сценария можно было визуально ещё больше трансформировать интерьер квартиры, т. к. при различном световом оформлении того или иного помещения, комната меняется и меняется настроение у домочадцев: яркая когда это праздник, или приглушенная, если это интимная обстановка и т. д.
Создание дизайна 2х комнатной квартиры – дело непростое, требующее профессионального дизайнерского знания, а также учета множества факторов. В данном дизайн-проекте интерьера Ирина Романова, хорошим дизайнерским решением смогла обеспечить грамотную организацию пространства, которое стало не только комфортным, гармоничным, стильным, элегантным, воздушным и уютным, но и функциональным, при этом никакие необходимые зоны и несущие стены, при перепланировке, были не затронуты.



















