Чертежи дизайн-проектов квартир и домов
Рабочие чертежи как основа реализации проекта
Серьезный ремонт квартиры или дома невозможен без участия дизайнера интерьера. Дизайн-проект, разработанный мной как практикующим дизайнером, — это точная инструкция по обустройству пространства, созданная с учетом образа жизни, привычек и сценариев проживания будущих владельцев.
Чертежи для строителей
Услуги дизайнера интерьера включают полный цикл работ: от формирования концепции до авторского сопровождения стройки. Результат — реализованный интерьер без хаоса, переделок и лишних расходов.
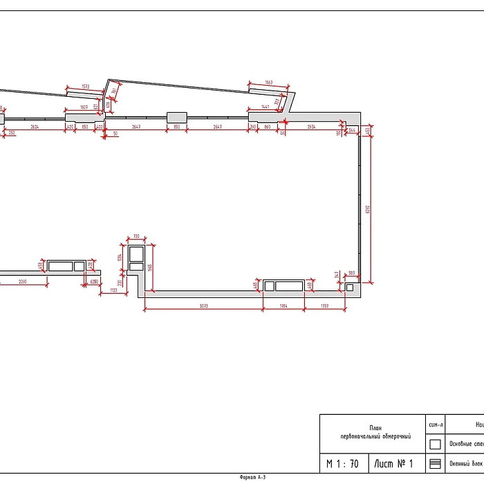
Работа над дизайн-проектом интерьера начинается с детального изучения объекта — квартиры или загородного дома. На первом этапе я выполняю обмерочный чертеж, где фиксируются все геометрические параметры: длина, ширина и высота помещений, размеры и расположение дверных и оконных проемов, ниш, вентиляции и инженерных коммуникаций.
Далее уточняются функциональные задачи и пожелания заказчика. На их основе принимается решение о перепланировке и разрабатывается план помещения после реконструкции с точными линейными размерами.
На базе утвержденной планировки создается план экспликации помещений с учетом расстановки мебели. Отдельно оформляется схема расстановки мебели — без детализации, но с четкой логикой и пропорциями.
После этого я перехожу к работе со стилем и атмосферой интерьера. Подбираются цветовые решения, мебель, отделочные материалы. Все решения опираются на индивидуальные предпочтения заказчика, актуальные тенденции и принципы эргономики. Трехмерная визуализация позволяет заранее увидеть будущий интерьер и внести корректировки до начала строительных работ.
Ключевой и самый трудоемкий этап — разработка комплекта рабочих чертежей. Именно они позволяют реализовать проект точно и без интерпретаций. Все строительные чертежи выполняются в строгом соответствии с действующими строительными нормами.
В состав комплекта рабочих чертежей входят:
План раскладки пола и план габаритов раскладки пола — чертежи с указанием типов напольных покрытий (паркет, плитка и другие), направлений укладки, размеров и используемых материалов.
План построения потолков и план габаритов потолков — схемы с обозначением конструкций, материалов и размеров. Для сложных многоуровневых решений дополнительно выполняются разрезы потолков.
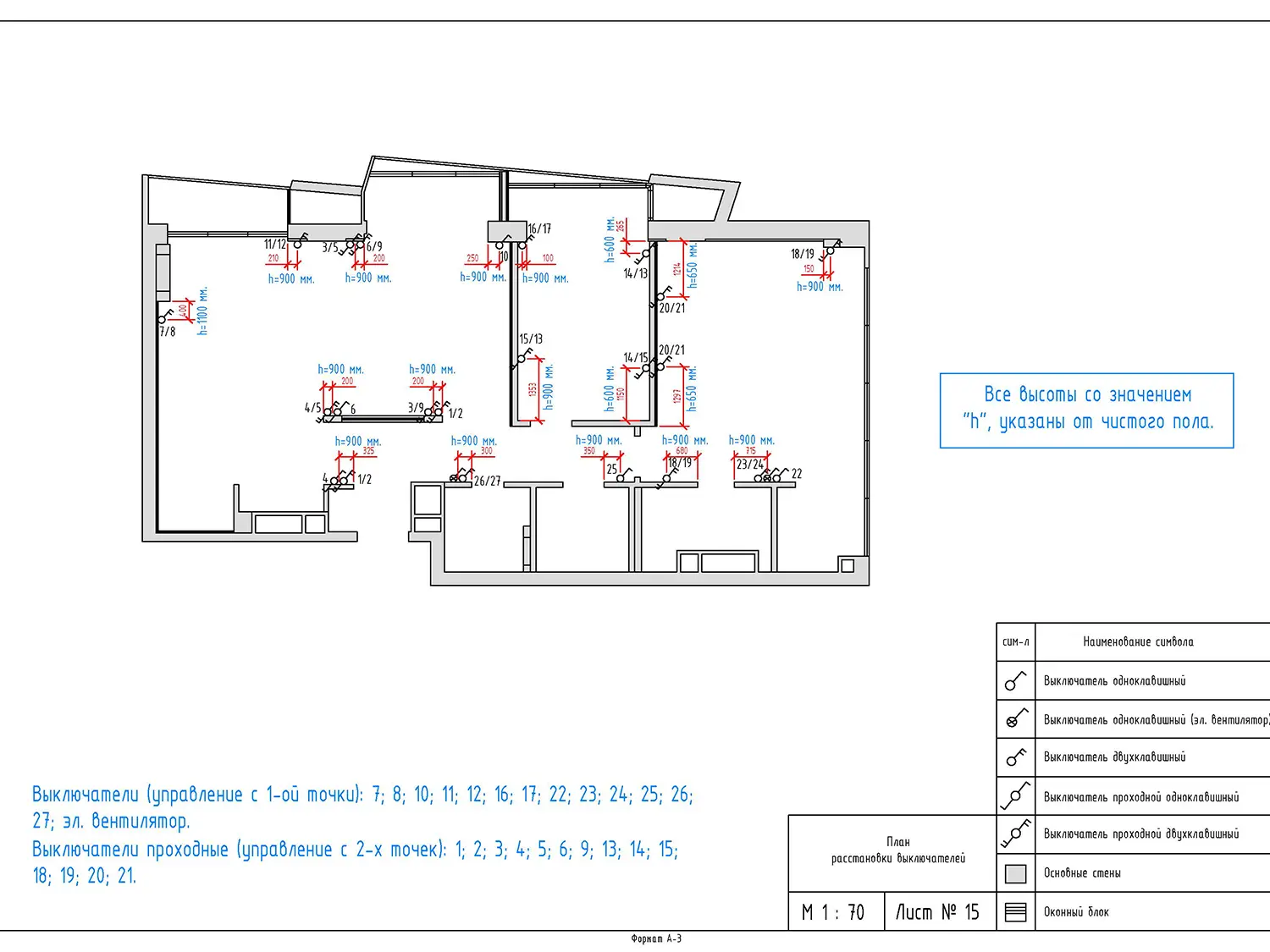
Также в дизайн-проект включаются планы освещения по группам, схемы размещения выключателей и розеток, необходимые для корректной работы электрики.
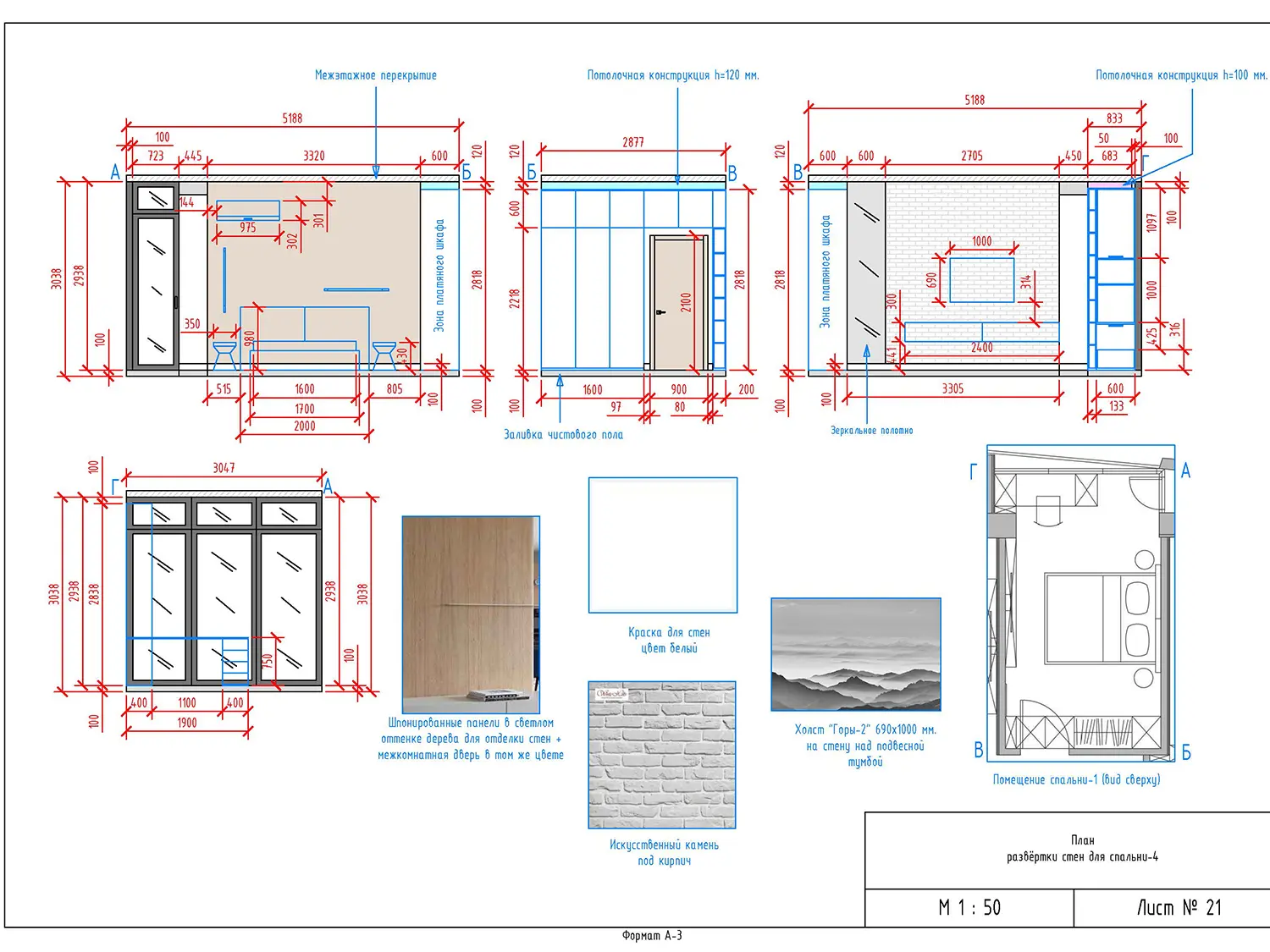
Обязательной частью проекта является план развертки стен с указанием высот, размеров мебели, отделочных материалов и расположения всех элементов.
Грамотно разработанные чертежи — это основа качественной реализации проекта. По ним строительная бригада может выполнять работы любой сложности без потери замысла и технических ошибок. Примеры реализованных решений вы можете посмотреть в разделе Портфолио дизайн-проектов.












